12
  • Loại hình BĐS
  • Biệt thự
  • MT-ECR-MLH-RM-VSL-1
  • Mã bất động sản
  • 3
  • Phòng ngủ
  • 2
  • Phòng tắm
  • 189,7 m²
  • Diện tích sử dụng
  • 162 m²
  • Diện tích mặt bằng
Villa RM Eco Retreat – Mùa Lễ Hội – Song lập 9×18
  • Liên Hệ

Tổng quan

Mùa lễ hội - Rừng mai

RỪNG MAI

Cảnh quan: 40%

Hạ tầng tiện ích: 39%

Công trình nhà ở: 21%

Chi tiết

Mã bất động sản MT-ECR-MLH-RM-VSL-1
3 Phòng ngủ
2 Phòng tắm
Diện tích sử dụng 189,7 m²
Diện tích mặt bằng 162 m²
Năm xây dựng 2025
Updated on March 6, 2026 at 6:20 pm

Vị trí dự án

  • Địa chỉ cụ thể: Nguyễn Hữu Trí, Thanh Phú, Bến Lức, Long An, Vietnam
  • Thành phố: Long An
  • Tỉnh/Quận: TP. Hồ Chí Minh
  • Khu vực: Eco Retreat - Mùa Lễ Hội
  • Quốc gia: Việt Nam

Tiện ích đặc biệt

  • Khu vườn: Đọc sách, Thảo mộc
  • Khu vườn: Âm thanh, Vận động
  • Công viên: Hồ Thiên Nga
  • TTTM: Eco Bazaar
  • Zen Clubhouse: ~2.600m²
  • Bể bơi: ~300m²

Thiết kế

TẦNG 1

Thiết kế với phòng khách rộng rãi kết nối trực tiếp với sân vườn phía trước, tạo không gian thoáng đãng và gần gũi thiên nhiên. Khu vực bếp ăn và bếp ướt bố trí phía sau, thuận tiện cho sinh hoạt và nấu nướng. Ngoài ra, tầng này còn có WC chung và khu cầu thang, đảm bảo công năng sử dụng hợp lý và thuận tiện cho cả gia đình.

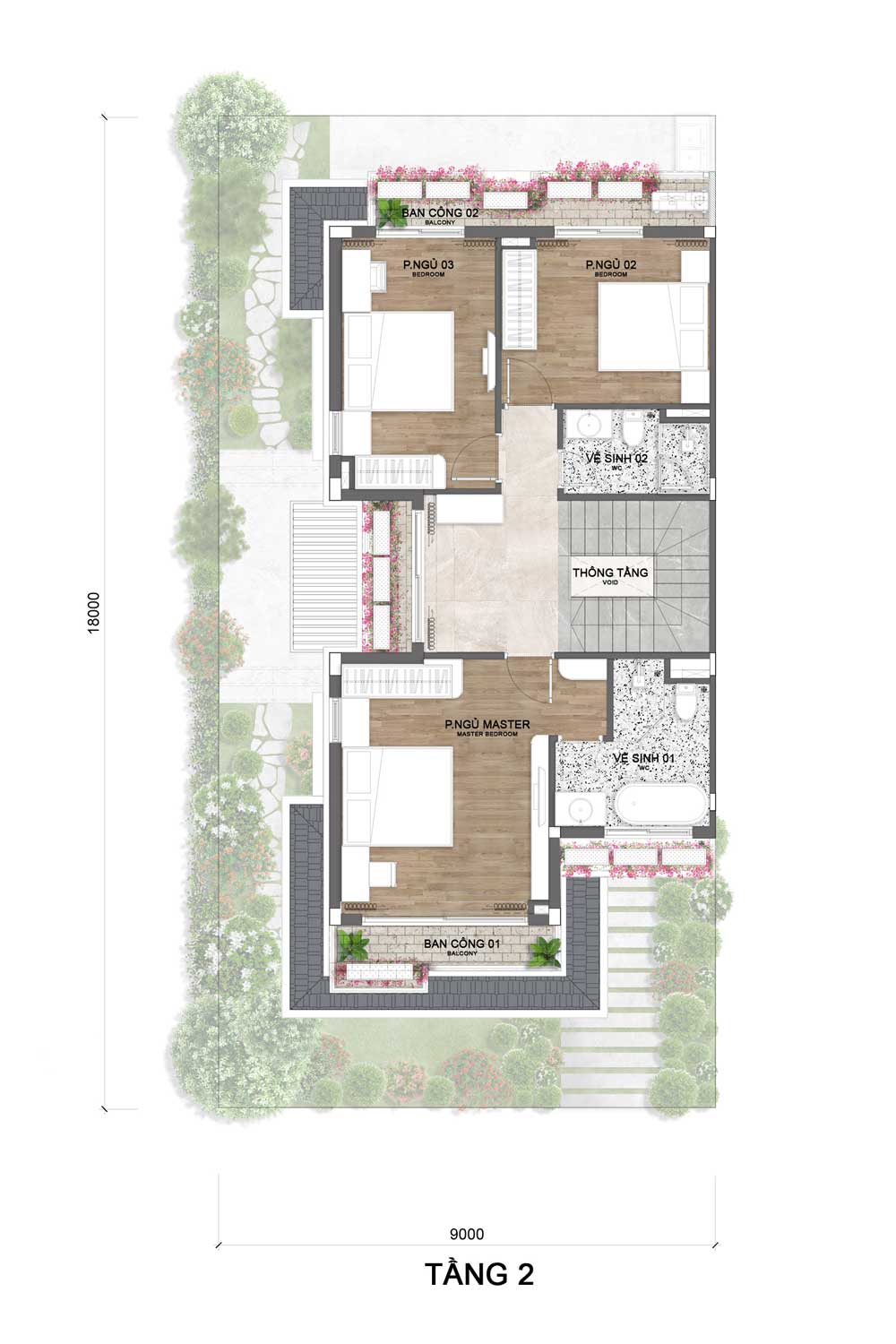
TẦNG 2

Bố trí 3 phòng ngủ gồm 1 phòng master và 2 phòng ngủ phụ, đảm bảo không gian nghỉ ngơi riêng tư cho gia đình. Khu vực thông tầng giúp lấy sáng và tạo sự thông thoáng cho toàn bộ ngôi nhà. Ngoài ra còn có 2 phòng vệ sinh và các ban công xanh, mang lại không gian thoáng mát và gần gũi thiên nhiên.

Rooms:
3
Baths:
2

TẦNG TUM

Bố trí phòng kỹ thuật phục vụ vận hành hệ thống của căn nhà. Thiết kế giếng trời trung tâm giúp tăng cường thông gió và ánh sáng tự nhiên.

Ước tính khoản vay (Chia Đều)

Đặt lịch tham quan

THÔNG TIN CỦA BẠN

Bất động sản tương tự

Thông tin, hình ảnh và giá bán trên trang này chỉ mang tính tham khảo và có thể thay đổi theo thời điểm. Vui lòng liên hệ trực tiếp để được tư vấn và xác nhận thông tin chính xác.

Compare listings

Compare