Tổng quan

RỪNG MAI
Cảnh quan: 40%
Hạ tầng tiện ích: 39%
Công trình nhà ở: 21%
– – – – – –
SHOP VILLA SONG LẬP
Chi tiết
Vị trí dự án
- Địa chỉ cụ thể: Nguyễn Hữu Trí, Thanh Phú, Bến Lức, Long An, Vietnam
- Thành phố: Long An
- Tỉnh/Quận: TP. Hồ Chí Minh
- Khu vực: Eco Retreat - Mùa Lễ Hội
- Quốc gia: Việt Nam
Tiện ích & đặc điểm
Tiện ích đặc biệt
- Khu vườn: Đọc sách, Thảo mộc
- Khu vườn: Âm thanh, Vận động
- Công viên: Hồ Thiên Nga
- TTTM: Eco Bazaar
- Zen Clubhouse: ~2.600m²
- Bể bơi: ~300m²
Thiết kế
TẦNG 1
Thiết kế làm không gian kinh doanh shop rộng rãi, phù hợp mở quán café, nhà hàng hoặc cửa hàng dịch vụ. Mặt bằng bố trí khu bàn khách trung tâm, quầy pha chế và khu bếp phía sau, kèm WC riêng. Không gian mở kết nối với sân vườn hai bên và lối đậu xe phía trước, tạo sự thoáng đãng và thuận tiện đón khách.
TẦNG 2
Bố trí không gian sinh hoạt chung rộng rãi gồm phòng khách, khu bếp – bàn ăn và 1 phòng ngủ riêng. Thiết kế mở kết nối với nhiều ban công bao quanh, giúp đón gió và ánh sáng tự nhiên. Ngoài ra, tầng có 2 phòng vệ sinh bố trí hợp lý, mang lại sự tiện nghi cho sinh hoạt và nghỉ dưỡng.
1
1
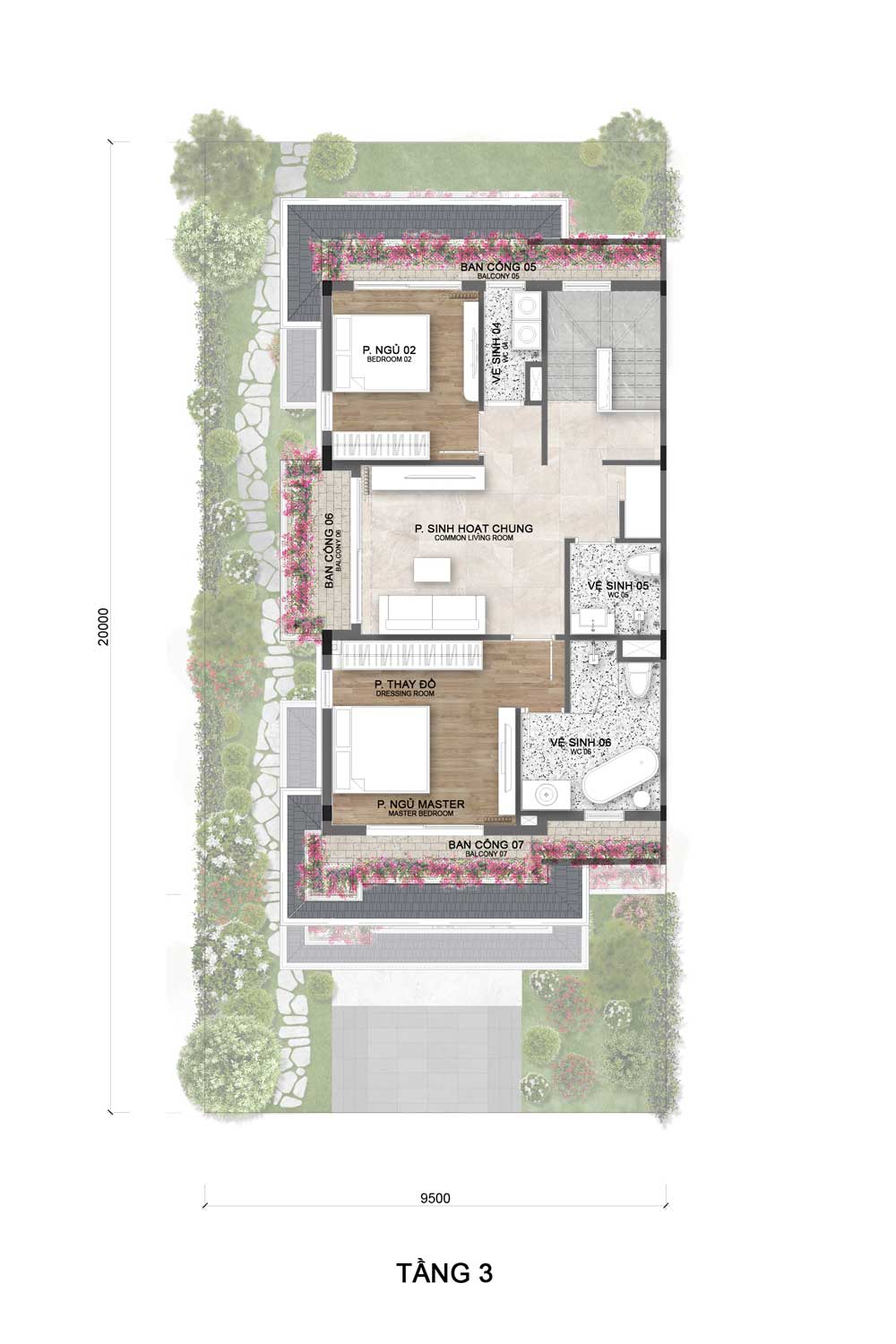
TẦNG 3
Gồm 2 phòng ngủ, trong đó có 1 phòng ngủ master tích hợp phòng thay đồ và phòng tắm riêng, tạo không gian nghỉ ngơi riêng tư và tiện nghi. Trung tâm tầng là phòng sinh hoạt chung kết nối với nhiều ban công thoáng đãng, giúp đón gió và ánh sáng tự nhiên. Ngoài ra, tầng còn bố trí các phòng vệ sinh riêng, đáp ứng đầy đủ nhu cầu sinh hoạt cho gia đình.
2
2
Ước tính khoản vay (Chia Đều)
- Khoản trả trước
- Số tiền vay
- Khoản thanh toán vay hàng tháng
Đặt lịch tham quan
Bất động sản tương tự

- minhtanrealty

